Chiều 27-7, tại trụ phường Đằng Giang, UBND quận Ngô Quyền tổ chức hội nghị Công bố công khai Đồ án điều chỉnh quy hoạch chi tiết tỷ lệ 1/500 Khu nhà ở tái định cư Dự án đầu tư xây dựng tuyến đường Đông Khê 2 tại phường Đằng Giang (Ngô Quyền). Đồng chí Trịnh Quang Trường – Phó Bí thư quận ủy, Phó Chủ tịch UBND quận chủ trì hội nghị.

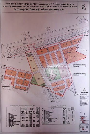
Theo đó, tại Quyết định số 759/QĐ-UBND ngày 26-5-2020 của UBND quận, Đồ án điều chỉnh quy hoạch chi tiết tỷ lệ 1/500 có quy mô nghiên cứu 81.585,52m².

Trong đó, một số diện tích đất được điều chỉnh tăng như: đất ở có diện tích 37.040,95m², tăng 24.485,68m²; đất công cộng 3.004,29m², tăng 115m²; đất cây xanh 7.220m², tăng 1.357,43m²; đất giao thông 32.786m², tăng 31.244,99m²… so với Đồ án quy hoạch được ban hành trước đó tại Quyết định 1694/QĐ-UBND ngày 24-10-2011.

Các nội dung nghiên cứu, điều chỉnh của Đồ án bao gồm: Quy hoạch sử dụng đất; quy hoạch không gian, kiến trúc, cảnh quan; thiết kế đô thị; quy hoạch hạ tầng kỹ thuật; quy hoạch cấp điện, điện chiếu sáng, cấp thoát nước và bảo vệ môi trường. Đáng chú ý, tại Đồ án lần này, có thêm nội dung điều chỉnh bổ sung đất hạ tầng kỹ thuật cho trạm điện với diện tích 81,62m².
Tại hội nghị, Phó Chủ tịch UBND quận Trịnh Quang Trường đã chủ trì ký kết bàn giao, chỉ đạo triển khai các nội dung liên quan theo quy định hiện hành.
LMT

